電話:0713-2115858
0713-2115868
電話:0713-2115858
0713-2115868
1、用途
LX36-8系列(82、84、88)起重機用限位開關(以下簡稱限位開關),本產品主要用于交流50HZ、60HZ,額定工作電壓至380V,直流額定工作電壓至220V的控制電路中,用以限制起重機旋轉運動機構的工作轉角和進行順序控制。
2、分類
2.1型號含義
2.2限位開關在下列條件下能可靠工作;
2.2.1海拔高度安裝地點的海拔高度不超過2000米;
2.2.2介質溫度 周圍空氣介質溫度不高于+75℃及不低于-25℃;
2.2.3相對濕度 安裝地點*濕月平均空氣相對濕度不大于90%(該月平均*低溫度不大于+25℃);
2.2.4環境條件的污染等級環境條件的污染等級為III級; 2.2.5安裝類別安裝類別為III類; 2.3限位開關的種類
2.3.1結構型式按結構型式分:本產品結構為旋轉式,速度比有:80:1、40:1、20:1此3種。
2.3.2控制回路按控制回路分:該限位開關*多可裝8個控制回路。
3、結構概述
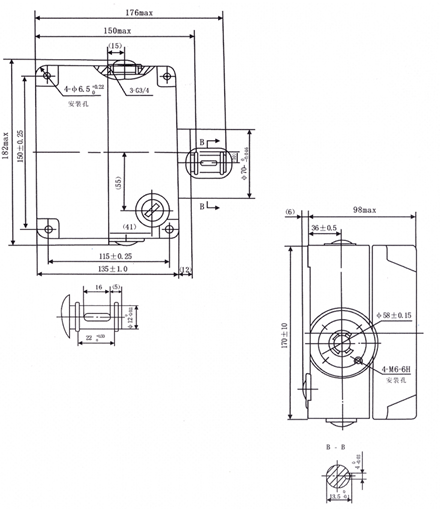
限位開關由主軸通過齒輪減速系統一具有可調凸輪片組組合的凸輪軸及對稱并列布置在其兩側的微動開關構成的控制系統三者結為一體安裝在防護等級為IP64的外殼內,其外形及安裝尺寸見圖1。
圖1LX36-8限位開關外形圖一。
4、參數
4.1基本參數限位開關的基本參數見表1 表1
額定控制容量 | 額定工作電壓(Ue)(V) | 額定工作電壓(le)(A) | 約定發熱電流(lth)(A) | 額定操作頻率(次/小時) | 額定絕緣電壓Ui(V) |
300VAAC | 380 | 0.8 | 6 | 300 | 380 |
220 | 1.36 | ||||
10WDC | 220 | 0.045 | |||
110 | 0.09 |
4.2接通分斷 限位開關的接通與分斷能力見表2 表2
使用類別 | 額定工作電流(le) | 接通條件 | 分斷條件 | ||||
l(A) | U(A) | COSФ或T0.95(ms) | Lc(A) | Ur(V) | COSФ或T0.95(ms) | ||
AC-11 | 380V0.8 | 8.8 | 418 | 0.7 | 8.8 | 418 | 0.7 |
DC-11 | 220V、10W 0.045安 | 0.05 | 242 | 300 ms | 0.05 | 242 | 300 ms |
4.3電壽命限位開關的電壽命在相應于表3所列的使用條件下,不需修理式更換零件的負載操作閃數為10萬次。表3
使用類別 | 接通條件 | 分斷條件 | ||||
l(A) | U(A) | COSФ或T0.95(ms) | Lc(A) | Ur(V) | COSФ或T0.95(ms) | |
AC-11 | 8 | 380 | 0.7 | 0.8 | 380 | 0.4 |
DC-11 | 0.045 | 220 | 300 ms | 0.045 | 220 | 300 ms |
4.4機械壽命限位開關的機械壽命為100萬次; 4.5限速度操動限位開關輸入軸端的*高轉速150r/min;
5、標號
5.1接點標號控制回路觸頭的接點標號見圖2所示。

6、凸輪片角度及其調整
6.1凸輪片工作角度 凸輪片的型式有兩類八種,即1類有la、ld……:g等七種。第II類只有一種,其工作角度及限位開關主軸相應轉數見表4。

型號 | 速度比 | 微動開關觸頭閉合狀態時 | 參考尺寸(A) | 備注 | ||
凸輪片類別 | 凸輪片*大工作角 | 限位開關主軸相應轉數(轉) | ||||
LX36-88 |
80:1 I | Ia | 338.6 | 75.2 | 0 | |
Ib | 336.6 | 74.8 | 1.5 | |||
Ic | 334.6 | 74.3 | 2.4 | |||
Id | 332.6 | 73.9 | 3.2 | |||
Ie | 330.6 | 73.4 | 4.0 | |||
If | 328.6 | 73 | 4.8 | |||
Ig | 326.6 | 72.5 | 5.7 | |||
II | 175 | 38.8 | ||||
LX36-84 |
40:1
I | Ia | 338.6 | 37.6 | 0 | |
Ib | 336.6 | 37.4 | 1.5 | |||
Ic | 334.6 | 37.1 | 2.4 | |||
Id | 332.6 | 36.9 | 3.2 | |||
Ie | 330.6 | 36.7 | 4.0 | |||
If | 328.6 | 36.5 | 4.8 | |||
Ig | 326.6 | 36.2 | 5.7 | |||
II | 175 | 194 | ||||
LX36-82 |
20:1
I | Ia | 338.6 | 18.8 | 0 | |
Ib | 336.6 | 18.7 | 1.5 | |||
Ic | 334.6 | 18.5 | 2.4 | |||
Id | 332.6 | 18.4 | 3.2 | |||
Ie | 330.6 | 18.3 | 4.0 | |||
If | 328.6 | 18.2 | 4.8 | |||
Ig | 326.6 | 18.1 | 5.7 | |||
II | 175 | 9.7 | ||||
6.2凸輪片組工作位置的調整
凸輪片組工作位置的調整,應按各控制回路的工作程序要求進行。而它們各自的工作程序的起點和終點位置,是由各凸輪片組(二個)構成的不同夾角來實現的,所以只有在確定各個凸輪片組工作角度的前提下,才能進行調整。
例如:某觸頭閉合區間的工作起點角度為43.7°、終點角度為138.9°時,采用II輪凸輪片,如何調整凸輪片組?
由于II型凸輪片的凸起部件窄,目測明顯,調整較易,所以起點的角度值取43.7°-13.7°=30°終點的角度值取138.9°+13.7=152.6°.然后使刻度盤上30°的起點刻度線與支撐的缺口相對準見圖3.使應調凸輪組中的一個凸輪部位中間調至與兩個支撐板缺口成為一條直線即可,另一個凸輪片也按此方法調定其終點工作位置。
關于各控制回路觸頭閉合起點和終點區間的確定,可用刻度盤“0點”為統一計算原點,按表4所列數據按比例分配法計算得出。
6.3調整及注意事項
6.3.1調整凸輪片的調整操作方法見圖4。
6.3.2注意事項
a、松動圓螺母時,不能使凸輪片處于自由轉動狀態。
b、凸輪組全部調動并經復查無誤后,須用圓螺母固緊,以防松動錯位。


7、安裝與檢查
7.1安裝
7.2產品的安裝
限位開關的安裝形式有兩種:
a、軸端法蘭盤安裝;
b、殼體底面水平安裝。無論采用何種形式的安裝,須保證起重機旋轉機構的軸線與限位開關輸入軸線相重合,以防產生安裝誤差引起的附加應力,其安裝尺寸見圖1。
7.1.2電線電纜的安裝
該限位開關設有三個導線進、出孔,其位置及尺寸見圖1。被選用的進出孔在導線安裝后,其孔端須密封處理,符合IP64要求。未被利用的孔,也須注意將螺塞旋緊。
7.2檢查
7.2.1安裝前的檢查
安裝前須對限位開關的轉動靈活性和其它部件是否處于正常工作狀態進行檢查。
7.2.2運行前的檢查
限位開關開始投入運行前,須首先對限位開關予以調整的控制系統是否能準確地控制進行核查并進行必要的再調整。
8、維修
8.1維修
限位開關的維修周期應與起重機電氣系統的維修同時進行。除做必要的檢查維修外,應對具有機械運動磨擦部位涂ZG-3鈣基潤滑脂。并更換已損壞的觸頭元件(微動開關)。
說明:對于選用超出基本規格轉速比的用戶可特殊定貨。裝箱數:5只/箱